

Eingabehilfen öffnen
Das neue Mehrfamilienhaus wird mit einem Kellergeschoss, einem Erd- und Obergeschoss sowie einem Staffelgeschoss für Sie errichtet. Der Aufzug im Haus fährt in alle Geschosse und somit auch bis in den Keller. Tolle Terrassen und Balkone sowie Dachterrassen in den Staffelgeschosswohnungen, alle mit einer Ausrichtung nach Südwesten, werden die neuen Eigentümer zu schätzen wissen. Für Ihren PKW wird es im Außenbereich einen festen Stellplatz direkt neben dem Haus geben.
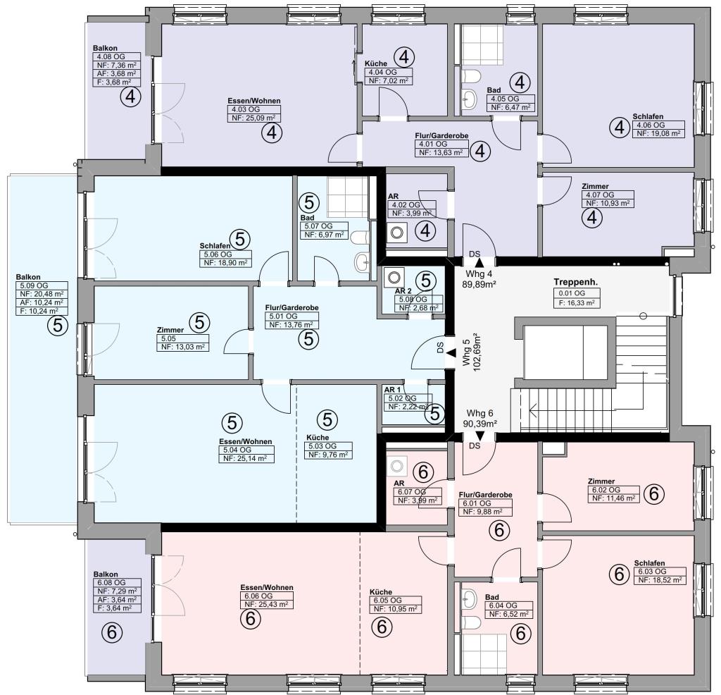
Es entstehen insgesamt 9 Eigentumswohnungen, je Etage 3 Wohnungen. Durch den Aufzug im Haus besteht die Möglichkeit, auch ohne Stufen zu Ihrem privaten Kellerraum zu gelangen.
Das Mehrfamilienhaus wird mit einem energieeffizienten Blockheizkraftwerk und Glasfaseranschluss versehen und wartet ab sofort auf Eigentümer, die nicht nur die verkehrsgünstige Lage von Büchen zu schätzen wissen, sondern auch viel Wert auf eine schöne Neubauwohnung mitten in einem grünen Umfeld legen.
Ausstattung
Die hier zum Verkauf stehende Wohnung liegt im Erdgeschoss und wird als 3-Zimmer-Wohnung ausgeführt. Ein sorgfältig geplanter Wohnungszuschnitt wird dem Betrachter nach ihrer Fertigstellung das Gefühl geben, zu Hause angekommen zu sein. Es entstehen moderne, helle Wohnräume, in die Sie dann nur noch einziehen müssen. Das Herzstück der Wohnung ist ohne Zweifel der kombinierte Wohn- und Essraum mit dem Zugang auf die sonnenausgerichtete Terrasse, wo sich jeder Eigentümer nach Belieben seine eigene Wohlfühloase schaffen kann. Der separate Küchenraum liegt direkt neben dem Wohn- und Esszimmer. Hier wird das Kochen mit der neuen Einbauküche zu einem schönen Erlebnis. Alle Wohnräume sind vom Flur aus zu erreichen. Dieser bietet neben dem Garderobenplatz auch einen Zugang in eine kleine Abstellkammer für Reinigungsutensilien oder auch Vorräte.
Im Schlafzimmer lässt sich schnell erkennen, dass viel Wert auf eine gute Möblierungsmöglichkeit gelegt wurde, und auch der 3. Wohnraum ist so groß geplant, dass er sowohl als Kinder-/Arbeits- oder auch als Gästezimmer genutzt werden kann.
Für den guten Start am Morgen werden Sie sich über das helle Duschbad mit bodengleicher Dusche freuen, welches sich durch dezente Fliesenfarben optimal mit eigenen Farben ergänzen lässt. Es wird bereits fertig ausgestattet sein mit einer Glas-Duschabtrennung, einem Handtuchheizkörper, der auch im Sommer Ihre Handtücher trocknet sowie modernen Sanitärobjekten.
Doch was gibt es Schöneres als im Sommer die Sonne auf der eigenen Terrasse mit Blick über die Felder genießen zu können? In Ihrer neuen Wohnung können Sie sich die frische Luft auf Ihrem ganz privaten Außenbereich um die Nase wehen lassen und dabei so richtig entspannen. Zudem lassen die großen Terrassentüren viel Licht und Wärme in den Innenraum. Und wenn es doch mal richtig kalt sein sollte, versorgt Sie die Fußbodenheizung in allen Wohnräumen und auch im Bad mit wohliger Wärme. Für den neuen Eigentümer bleiben bei diesen Aussichten sicher keine Wünsche mehr offen.
Die Wohnung befindet sich nach der Fertigstellung in einem bezugsfertigen Zustand mit weiß gestrichen Wänden und Bodenbelägen in allen Räumen. Sie ist dann ausgestattet mit einem kompletten Duschbad und einer vollwertigen Einbauküche. Viele Extras wie z.B. elektrische Außenrollläden vor den Fenstern, eine kontrollierte Be- und Entlüftungsanlage mit Wärmerückgewinnung, die Dusche mit Glasabtrennung, der elektrische Handtuchheizkörper und die Fußbodenheizung machen diese Wohnung mit Ihrer eigenen Gestaltung sicher zu etwas ganz Besonderem.
Die genaue Ausstattung ist dabei der Baubeschreibung zu entnehmen. Einzelne Ausstattungsmerkmale können gemäß Baufortschritt und gegen Aufpreis noch erweitert oder verändert werden.
Lage
Büchen liegt mit seinen rd. 5.700 Einwohnern im südlichen Bereich des Kreises Herzogtum Lauenburg. Öffentliche Verkehrsmittel und Busverbindungen zu den umliegenden Städten sind gegeben. Büchen verfügt über einen eigenen Bahnhof, von dort erreichen Sie z.B. Hamburg in 30 Minuten. Die A24 Berlin-Hamburg, Anschlusstelle ist Hornbek, ist ca. 8 km entfernt. Die Grund- und Hauptschule, die Realschule, Kindertagesstätten, sowie Sport- und Freizeitmöglichkeiten sind am Ort vorhanden. Diverse Einkaufmöglichkeiten sind fußläufig gut erreichbar. Ein zusätzliches Spektrum an Fachärzten und Apotheken ist vor Ort gegeben.
Der Neubau des Mehrfamilienhauses wird in direkter Feldrandlage errichtet: Umgeben von der Natur und doch zentral in Büchen. Die Gesamtschule, Einkaufsmöglichkeiten, Ärzte und auch der Bahnhof mit seiner direkten Anbindung nach Hamburg und Lübeck sind von hier aus in wenigen Minuten erreichbar. Die Straße Großer Sandkamp ist eine reine Wohnstraße ohne Durchgangsverkehr (Anlieger-Einbahnstraße) hier lässt es sich entspannt und ruhig wohnen.
Sonstiges
Energieausweis vorhanden: Ja
Energieausweisart: Bedarf
Kennwert: 51,3 kWh/(m² a)
Energieeffizienzklasse: B
Warmwasser enthalten: Ja
Energieträger: Kraft-Wärme-Kopplung, fossil
Erstellungsdatum Energieausweis: 02.03.2021
gültig bis: 01.03.2031
{module title="Bautagebuch Büchen"}
{module title="Hinweis Kroll"}
1. Etage
90 m²
3 Zimmer
Established in 2022
Breitenfelder Immobilien GmbH
Jan Ihns & Nina Gerson-Ihns
Verwaltung: Priesterbach 1a • 23881 Breitenfelde
Büro: Am Markt 1 • 23879 Mölln
E-Mail:
Tel.: Jan Ihns: 0172 - 430 1232
